
Ser du etter et studio som kombinerer fokus, fellesskap og fleksibilitet? På Gamlebyen Loft i St. Halvards gate 33 har vi nå ledige studioer for interiørarkitekter, kreative aktører og små team.
På Gamlebyen Loft er studioet ditt en del av et større kreativt økosystem. Å leie her kan bidra med et tettere samarbeid med oss i Novooi, utveksling av idéer på tvers av fagfelt, og bli en del av et sterkt og etablert fellesskap i Gamlebyen.
Gamlebyen Loft huser designere, arkitekter, musikkprodusenter, utviklere, kunstnere og andre kreative små bedrifter. Alle jobber selvstendig i egne studioer, men møtes jevnlig gjennom fellesarealer, lunsjer, arrangementer og uformelt samarbeid. Dette er et sted tilrettelagt for fokus, kreativitet og faglig utveksling.
Studio-alternativer og priser

Privat studio
Lukket studio på ca. 12 kvm
7 000 kr per måned eks mva

Delt studio
Delt arbeidsplass i lukket rom, ca. 12 kvm
3 500 kr per måned eks mva
Dette er inkludert
- Tilgang til møterom i alle byggene på Gamlebyen Loft
- Fri bruk av fellesarealer til egne initiativer
- Romslig balkong, kjøkken og lounge – perfekt for sosiale kvelder
- Strøm og høyhastighetsinternett innen normalt forbruk
- Renhold av studioer og fellesarealer
- Tilgang til felleskjøkken og romslige fellesområder
- Printertilgang og daglig kaffe
- Mulighet til å arrangere egne events, foredrag eller samlinger
- Gratis gjesteparkering rett utenfor på kvelder og helger






Felleskostnader: Inntil kr 1 000 eks mva per måned. Dekker kaffe, printer, møterom, felleskjøkken og generell drift av fellesarealer.
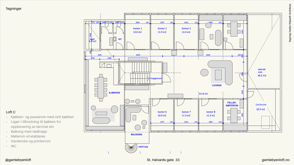
Loft C er nylig oppgradert med nye, lyse gulv i fellesarealene, nytt felleskjøkken og åpne, romslige soner. Beliggenheten byr på svært gode kollektivforbindelser, med buss rett utenfor døren og gangavstand til Bjørvika og Oslo S. Høres dette interessant ut, forteller vi gjerne mer eller inviterer deg innom for en visning.